Architect

Byt PS-82

Year:
02/2022
Location:
Trnava, SK
Authors:
Oliver Hacaj

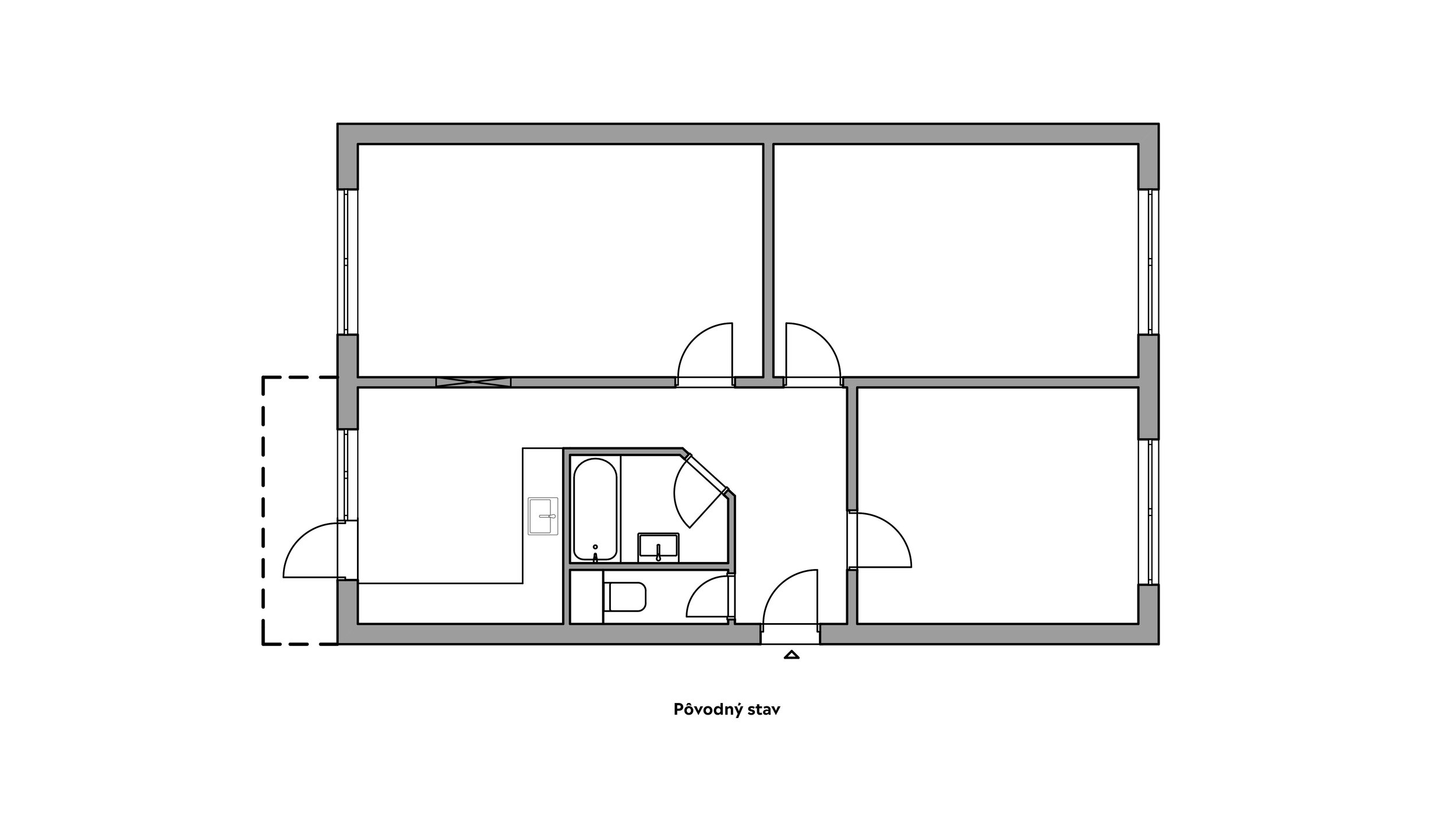
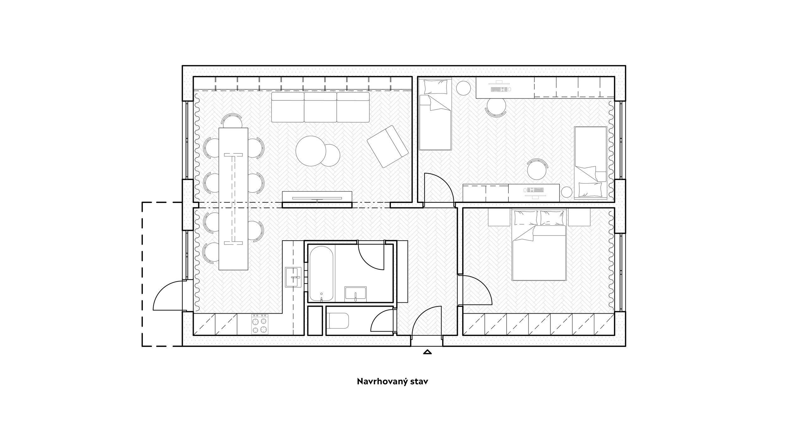
Návrh bytu v typickom panelovom dome z 80. rokov. Kuchyňu a obývaciu izbu dispozične prepájame rozšírením otvoru v mieste pôvodných, zamurovaných dverí.

Vzniká vzdušný priestor s masívnym, dlhým stolom - centrom celého bytu.

Pre návštevy, kamarátov, rodinu, deti…