Architect

Mestský Úrad Trnava

Year:
09/2020
Location:
Trnava, SK

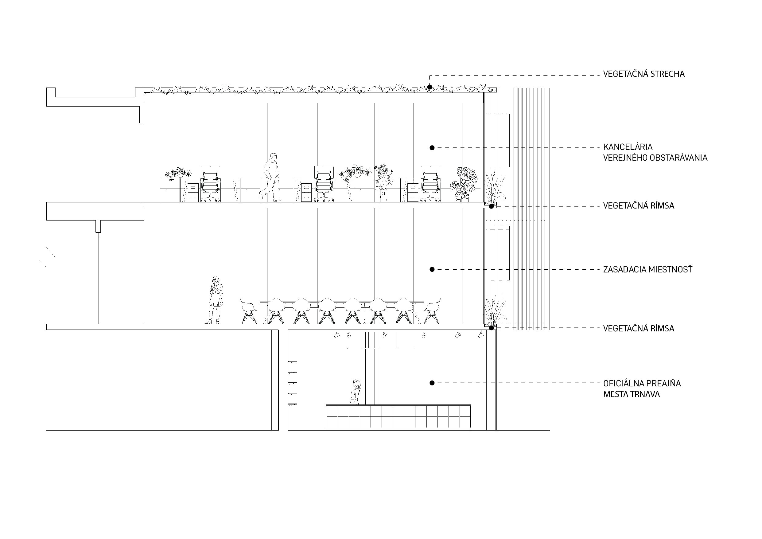
Ideový koncept rieši prístavbu k mestskému úradu v Trnave. Má slúžiť ako prvotný krok k otvoreniu diskusie, pomôcť ujasniť predstavu mestských zastupiteľov a overiť realizovateľnosť projektu. Nakoľko nie je možné zo statického posudku riešiť rozšírenie MÚ ako nadstavbu, ponúka sa možnosť obstavať jestvujúcu železobetónovú predsadenú konštrukciu, v súčasnosti využívanú ako terasu.

Tvar prístavby vychádza z charakteristickej, predsadenej fasády mestského úradu. Zaoblené nárožia plynule opticky nadväzujú na existujúcu budovu.

Na 2.NP a 3.NP je fasáda odskočená a vytvára tak priestor pre vegetáciu okolo jej obvodu. Na tento prvok si pri súčasnej podobe mestkého úradu mnohí Trnavčania zvykli a neodmysliteľne patrí ku kontextu miesta.

Na 1. NP sa nachádza oficiálna predajňa mesta. Má ponúkať široký sortiment suvenírov, keramiky, textílií, kníh a publikácií o Trnave. V ideálnom prípade od lokálnych výrobcov. Okolo masívneho betónového sústĺpia je priestor na výstavu obrazov a grafík .

Nemalo by ísť o ich predaj, ale o vystavenie do verejného priestoru aby vznikla pridaná hodnota aj mimo prevádzkových hodín.

Na 2. NP sa nachádza veľká zasadacia miestnosť pre 14 ľudí.

Na 3.NP je kancelária verejného obstarávania.