1/4
Štvorlístky
- Year:
- 11/2021
- Location:
- Špačince, SK
- Authors:
- Oliver Hacaj, Marek Malček
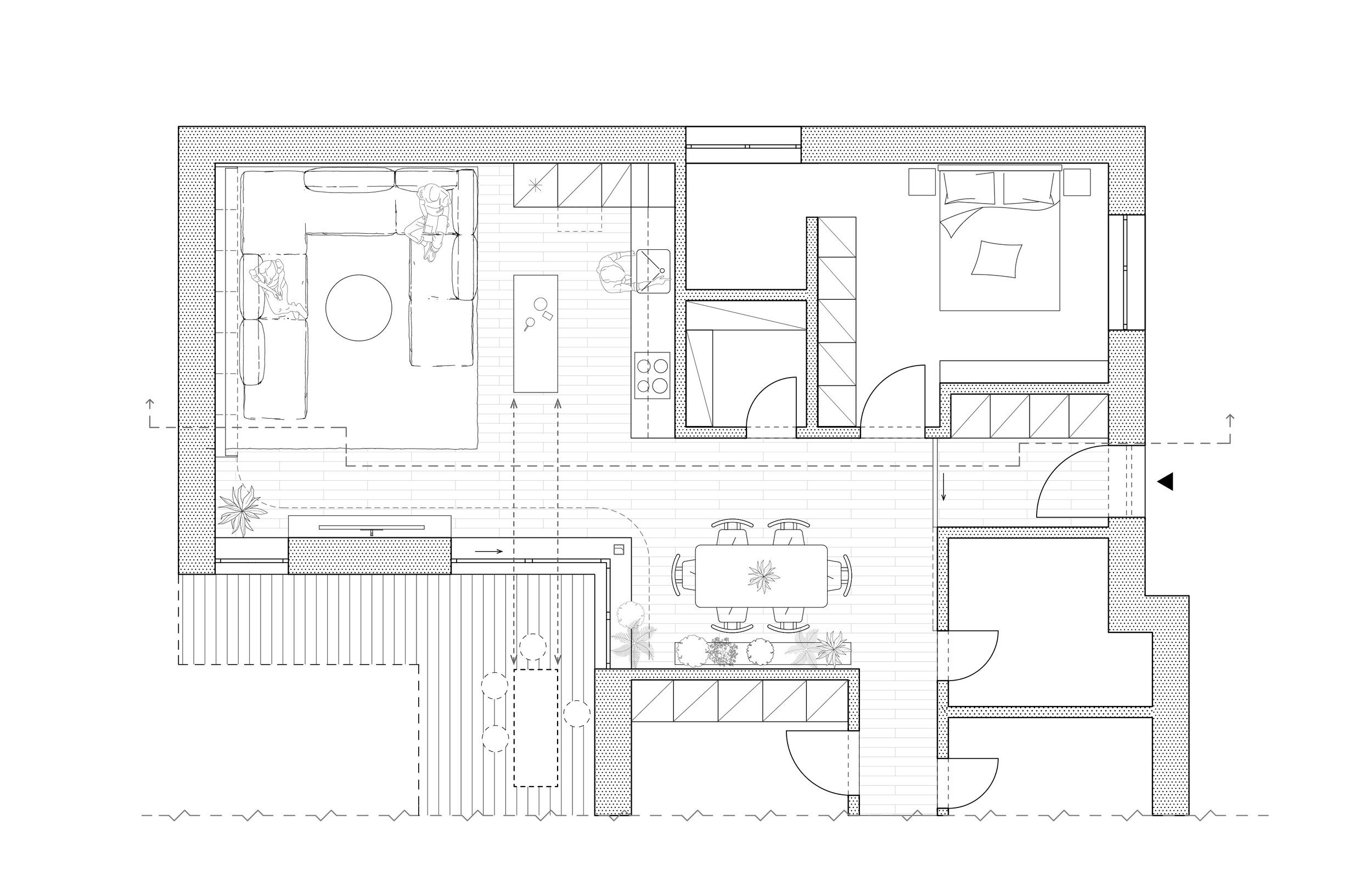
Zadanie malej mierky. V podstate zariadiť dennú časť interiéru v rodinnom dome.
Spojenú kuchyňu a obývaciu izbu sme doplnili o rozmernú pohovku, a dominantný prvok - policovú stenu. Kuchynský ostrovček sme navrhli ako mobilný, s možnosťou presunutia na terasu.
Všetko v striedmej materialite a farebnosti.